+39 0575 295 691 info@studiopaci.it
Seleziona una pagina

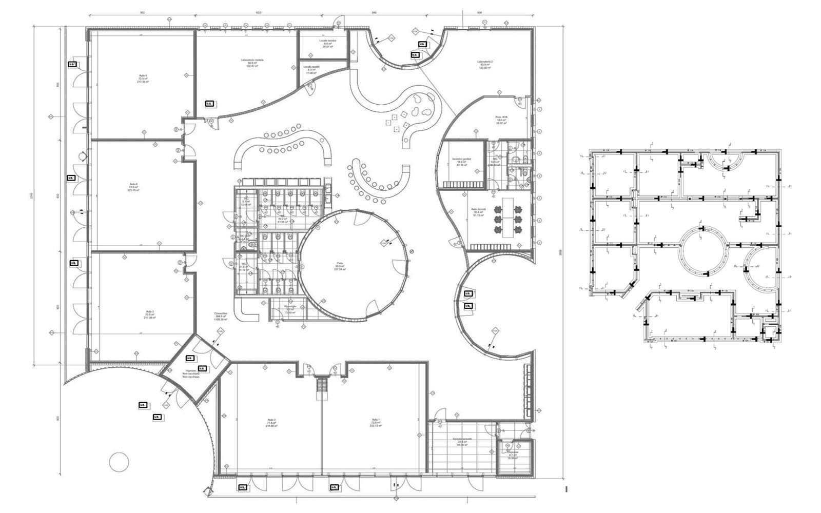
Nuova Scuola Primaria nella Frazione Badia Pozzeveri nel Comune di Altopascio (LU)

Oggetto di intervento è la scuola primaria della Frazione Badia Pozzeveri, nel Comune di Altopascio (LU).

La tipologia strutturale scelta in fase progettuale è quella di struttura a pannelli a strati incrociato (X-LAM) con impalcato rigido di copertura. Il vantaggio della struttura in X-LAM si basa sulla leggerezza del materiale costruttivo, l’elevata resistenza e duttilità, che lo rende perfetto per l’utilizzo in zona sismica. La duttilità di queste strutture risiede nelle sue connessioni (viteria, bulloneria e piastre) costituite da elementi in acciaio, materiale principe in termini di riserva elastica. L’accoppiamento tra legno e acciaio in queste tipologie strutturali consente di sfruttare le caratteristiche migliori di entrambi i materiali: la leggerezza e l’elevata resistenza del legno, e la grandissima capacità duttile dell’acciaio.

Il progetto impiantistico è stato sviluppato con l’obiettivo di minimizzare i consumi energetici attraverso uno sfruttamento intensivo delle risorse rinnovabili, e garantire il massimo comfort termo-igrometrico agli occupanti. Per ottenere i risultati prefissi, la produzione di energia termica per riscaldamento e acqua calda sanitaria è ottenuta tramite pompe di calore aria-acqua dedicate. La distribuzione del calore all’interno dell’edificio è realizzata tramite pannelli radianti a pavimento. È stato inoltre previsto un comando generale, per la gestione dell’impianto termico.

Il sistema di illuminazione ordinaria è composto da lampade LED a basso consumo, conformi ai Criteri Ambientali Minimi in termini di efficienza e resa cromatica; tutte le lampade sono dimmerabili e comandate da sensori di movimento e presenza, con regolazione della luminosità in funzione della luce diurna. Un impianto fotovoltaico installato in copertura garantisce, attraverso l’autoconsumo dell’energia prodotta, la copertura di buona parte dei consumi elettrici dell’edificio.

Luogo: Frazione Badia Pozzeveri, Comune di Altopascio (LU)

Proprietà: Comune di Altopascio (LU)

Importo dell’opera: € 1.537.500,00

Superficie di costruito: mq 1290

Prestazione svolta: Progettazione definitiva, esecutiva strutturale e impiantistica, direzione lavori. L’intervento ha previsto la costruzione di una nuova Scuola Primaria nella Frazione Badia Pozzeveri, nel Comune di Altopascio (LU).