+39 0575 295 691 info@studiopaci.it
Seleziona una pagina

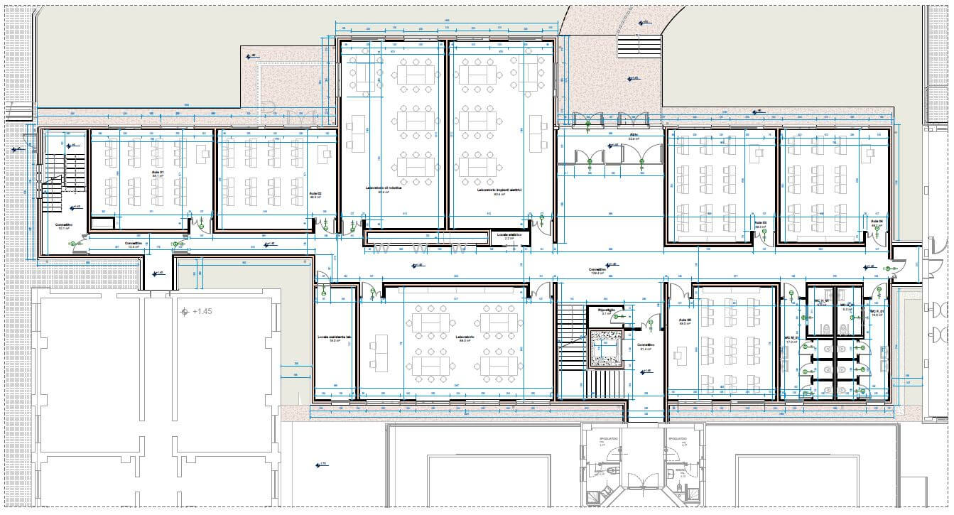
Progetto dei lavori di ristrutturazione e ampliamento della sede centrale dell’ITIS di Arezzo, relativo al completamento dell’ala su Via Piero della Francesca

L’intervento ha previsto la demolizione di una porzione del corpo di fabbrica esistente e la realizzazione di un nuovo edificio che funziona da completamento ed ampliamento di quello esistente, che si sviluppa in quattro livelli.

Il nuovo edificio è costituito da un piano interrato e tre piani fuori terra che sono resi comunicanti con le parti esistenti dell’edificio. Pertanto il manufatto edilizio si presenta come un corpo unitario e compatto che si sviluppa in altezza e si pone a chiusura di una corte edilizia.

Tra le peculiarità progettuali dell’edificio vi è stata una particolare attenzione rivolta all’involucro, costituito da materiali altamente resistenti e isolanti, in grado di garantire alte prestazioni termiche, che implicano un ridotto consumo energetico annuale, collocando la nuova struttura in una situazione di eccellente comfort abitativo.

La scelta dei materiali, naturali ed eco-compatibili, nonché la proposta di nuove tecnologie costruttive e impiantistiche sono state effettuate nel rispetto dell’impatto ambientale e della tutela della salute del nuovo corpo di fabbrica, frequentato da un’utenza sensibile.

Luogo: Via Piero della Francesca, Arezzo

Proprietà: Provincia di Arezzo

Importo dell’opera: € 3.921.400,00

Prestazione svolta: Progettazione esecutiva impiantistica, progettazione BIM impiantistica. L’intervento prevede la ristrutturazione e l’ampliamento della sede centrale dell’ITIS di Arezzo, relativo al completamento dell’ala su Via Piero della Francesca