+39 0575 295 691 info@studiopaci.it
Seleziona una pagina

Progetto per la riqualificazione funzionale di un edificio da destinare ad housing sociale e servizi per persone con disabilità denominato ‘Ex asilo San Lino’ a Larciano (PT)

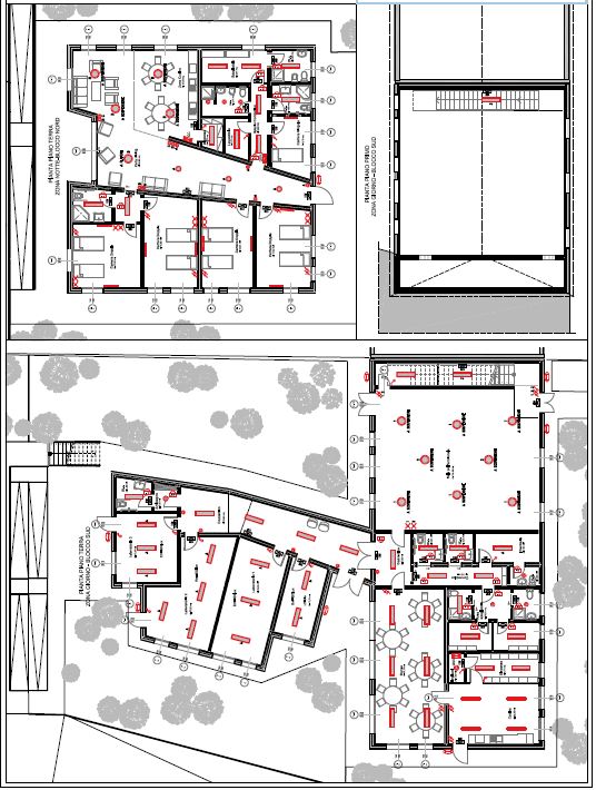
L’intervento ha previsto la realizzazione di una struttura che fungesse da polo aggregativo sociale da destinare a diverse funzioni. Infatti si tratta di un edificio composto da due sezioni non comunicanti tra di loro: una zona è adibita a centro diagnostico e contiene ambulatori, uffici e locali accessori, mentre una seconda zona sarà utilizzata per ospitare cappelle per il commiato. La funzione della struttura è prettamente diretta alla collettività e alle persone con particolari necessità di assistenza sanitaria.

Il progetto tiene conto e rispetta le caratteristiche costruttive per una progettazione a basso impatto di barriere architettoniche e per la realizzazione di un edificio passivo, il più possibile auto sufficiente dal punto di vista dei fabbisogni energetici e dei consumi per la futura gestione.

Le soluzioni costruttive e impiantistiche che sono state previste per il Centro Socio Sanitario di Larciano sono di tipo intelligente, finalizzate sia al contenimento dei consumi energetici e alla gestione razionale delle fonti di energia per il riscaldamento e il raffrescamento, sia al benessere termoigrometrico invernale ed estivo degli occupanti, oltre che alla valorizzazione della risorsa idrica e al risparmio energetico per la produzione di acqua calda sanitaria.

La struttura assicura un bassissimo consumo grazie alle prestazioni passive (ottimo involucro e buona esposizione solare) e attive (pannelli solari per acqua calda e fotovoltaici per produzione di energia elettrica).

È stato previsto – possibilmente e compatibilmente con le risorse economiche – un sistema di recupero e riutilizzo delle acque piovane per l’irrigazione del giardino e degli spazi a verde, e l’uso dei dosatori di flusso negli impianti onde garantire il risparmio della risorsa idrica.

Inoltre, per garantire maggior benessere e comfort agli occupanti, la struttura è caratterizzata dalla non tossicità dei materiali da costruzione e dei materiali di finitura impiegati, dalla traspirabilità dell’involucro edilizio; buon livello di illuminazione naturale e della ventilazione naturale, assicurata dalle aperture contrapposte su pareti e da un idoneo impianto meccanico di ricambio dell’aria con recuperatore di calore. Anche la scelta dei colori, sia per gli ambienti esterni che per quelli interni, è stata studiata per favorire il benessere psico-fisico dei fruitori.

Luogo: Larciano (PT)

Proprietà: Comune di Larciano (PT)

Importo dell’opera: € 1.165.000,00

Superficie di costruito: mq 675

Prestazione svolta: Progettazione definitiva ed esecutiva impiantistica, direzione lavori.
L’intervento ha previsto il progetto per la riqualificazione funzionale di un edificio da destinare ad housing sociale e servizi per persone con disabilità denominato ‘Ex asilo San Lino’ a Larciano (PT).