+39 0575 295 691 info@studiopaci.it
Seleziona una pagina

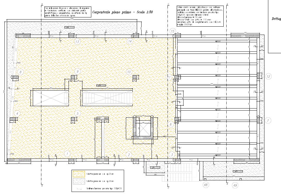
Realizzazione della nuova sede per il Centro per l’Impiego, in Via Assisi nel Comune di Firenze – PNRR M.5 C.1 I 1.1

L’intervento prevede la realizzazione di un nuovo edificio destinato a centro per l’impiego, con l’obiettivo di rafforzare la rete di centri impiego cittadina. L’edificio è affidato in gestione ad ARTI (Agenzia Regionale Toscana per l’Impiego), ente che opera nel settore del mercato del lavoro, gestendo i Centri per l’Impiego e presidiando il territorio in materia di politiche attive del lavoro, in linea con le direttive regionali e nazionali riguardanti i livelli essenziali delle prestazioni (LEP).

Il nuovo edificio è connesso alla viabilità circostante e posto in prossimità ad altri edifici ospitanti associazioni e aree ricreative a verde. Esso è capace di ospitare fino a 30 impiegati, oltre ai 60 occupanti della sala polivalente e i visitatori che verranno ospitati nelle aree di attesa formazione T.R.I.O.

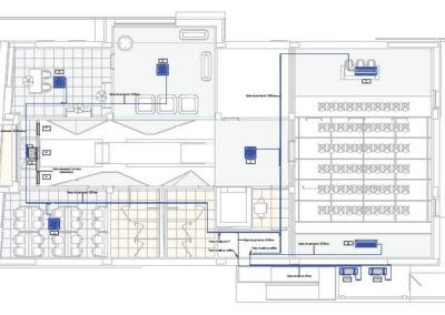
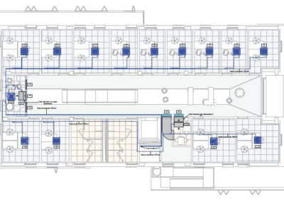
L’organizzazione degli spazi ha previsto una chiara suddivisione delle funzioni per piani che, grazie ad un accurato studio dei flussi e della circolazione verticale ed orizzontale, crea due livelli che possono essere definiti “indipendenti” tra loro.

Tra le principali esigenze legate alla realizzazione di un nuovo edificio pubblico, è emerso quella di realizzare un edificio sostenibile, sia dal punto di vista energetico che dal punto di vista ambientale, al fine di ridurre l’impatto sul territorio circostante, ed al tempo stesso conseguire significativi risparmi economici per la gestione e la manutenzione.

Il progetto è stato messo a punto definendo tecnologie costruttive, stratigrafie, sistemi impiantistici e strategie architettoniche in modo da arrivare a raggiungere le prestazioni previste per gli edifici “nZEB” ovvero, edifici e consumo di energia vicini allo zero.

Luogo: Firenze, Via Assisi

Proprietà: Comune di Firenze

Importo dell’opera: € 1.949.965,68

Superficie di costruito: mq 670

Prestazione svolta: Progettazione architettonica, strutturale ed impiantistica, coordinamento della sicurezza. L’intervento prevede la progettazione e il coordinamento della sicurezza per la realizzazione della nuova sede per il Centro per l’Impiego, in Via Assisi nel Comune di Firenze – PNRR M.5 C.1 I 1.1.